INTERMOUNTAIN OREM COMMUNITY HOSPITAL MRI ADDITION

a place for everything healthcare
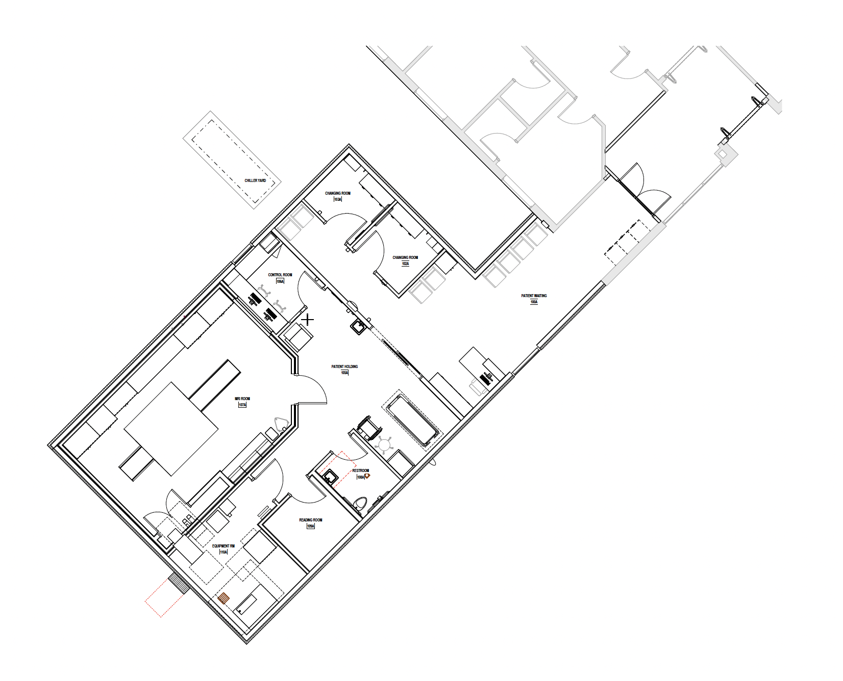
INTERMOUNTAIN orem community hospital mri addition

Intermountain Health’s Orem Community Hospital has reinstated MRI services, which required a new addition to the facility. The new addition will include the following services:

MRI Room, Control Room, Equipment Room, Patient prep/recovery, Designated MRI Zones 1-4, Accommodations for MRI Chiller outside of building, Reading Room, Other Services, Toilet Room, Dressing Room(s), Sub-Waiting, Connector corridor to existing building,

square footage

2,149 sf 

construction cost

$1.75 million

services

*

Our firm is actively expanding into the healthcare sector, bringing deep experience in complex, highly regulated building types where performance, precision, and human-centered design are essential. Healthcare facilities demand precision, adaptability, and deep cross-disciplinary coordination—an approach that aligns naturally with our design process.

We are focused on creating clear, efficient, and humane environments that support patient dignity, optimize staff workflows, and remain flexible as care models and technologies evolve.


healthcare projects in progress:

San Juan Hospital

Intermountain McKay Dee Hybrid Operating Room

Intermountain McKay Dee ICU Expansion

Intermountain McKay Dee MOB level 2 Changes

Intermountain Central Orem Pediatrics Remodel

Intermountain SGRH SPECT Replacement

Intermountain Orem Community Hospital (OCH) MRI Addition

Intermountain Health Heber Valley South Building Program

Intermountain AVH Fluoro Room 1 Replacement

Intermountain Health Care IMED Cardiac CT

Intermountain Health IMED Nuc Med Remodel

Intermountain Health Care LDS Hospital Various Remodels

Intermountain Health American Fork Hospital Remodels

Intermountain Health HV South MOB Building Planning

Intermountain Health TOSH X-Ray Room Replacement

 

Intermountain Health McKay Dee Cath Lab 4 Replacement

Intermountain Health PCH NICU Study

Intermountain Health SGRH MRI Replacement

Intermountain Health McKay Dee Hospital NICU Assessment

Intermountain Health Logan Regional Hospital OR 7 Expansion

Intermountain Health Orem Community Hospital Steris Boom Replacement

Intermountain Health IMED Hybrid OR Remodel

Intermountain Health TOSH L02 L03 Feasibility Study

Intermountain Health Logan Regional Hospital Inpatient Pharmacy Expansion

Intermountain Health McKay Dee IR Expansion

University of Utah HCH CT Replacement